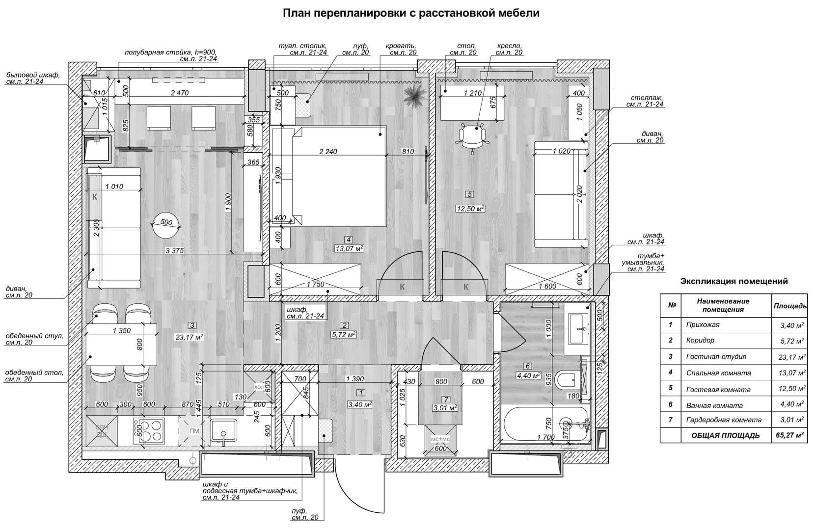
Данная квартира расположена в одном из лучших ЖК нашего города. По заданию заказчика на данной площади нужно было спроектировать студию, 2 спальни, гардеробную и ванную комнату. Все пожелания успешно удалось воплотить в жизнь. Квартира получилась светлой, просторной, без лишней мебели и большого количества декора. Она функциональна и продумана. Квартира пока будет использоваться для проживания молодой парой без детей, но в перспективе кабинет без труда может стать детской комнатной, при этом все члены семьи будут по-прежнему чувствовать себя комфортно. В отделке в основном используется покраска, что позволяет легко менять цветовую гамму помещений в будущем.
Трёхкомнатная квартира в ЖК «GENEVE»
Год проектирования: 2021
Площадь объекта: 65,3 м2
Размещение: г.Днепр