Трёхкомнатная квартира в ЖК «Comfort City» | Портфолио «KAKADU-STUDIO»

Трёхкомнатная квартира в ЖК «Comfort City»

Год проектирования: 2021
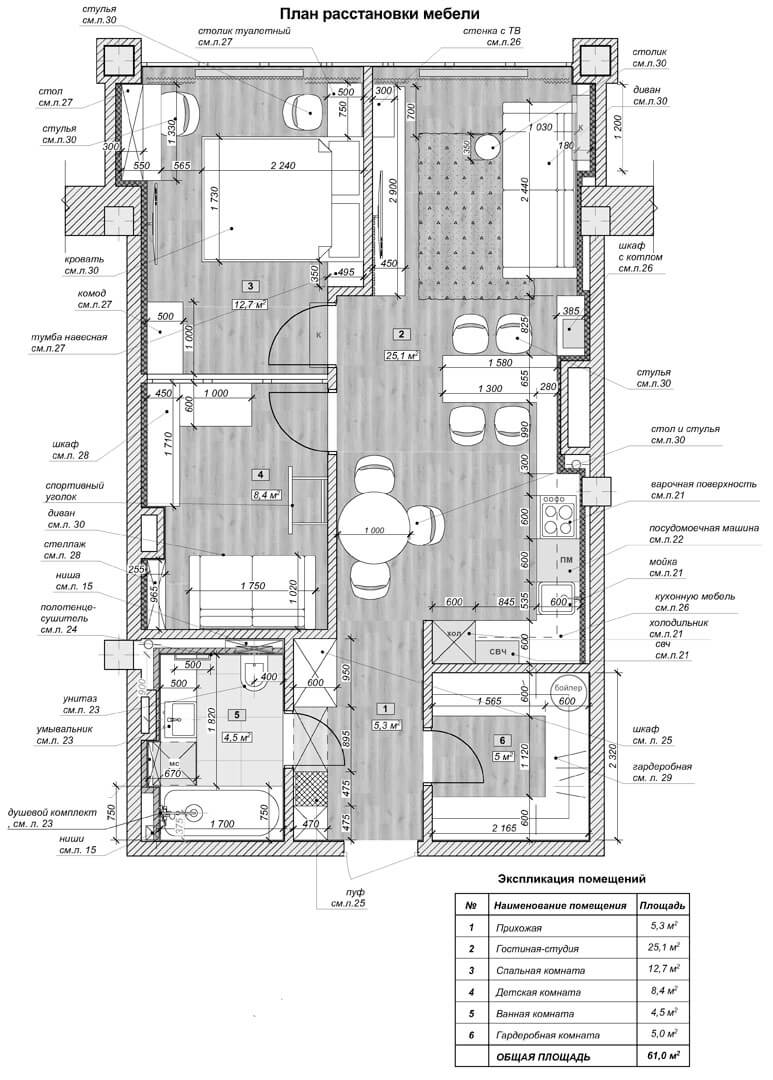
Площадь объекта: 61,0 м2
Размещение: г.Днепр

В этой квартире , не смотря на её небольшие размеры, удалось разместить просторную студию, 2 спальни , гардеробную и ванную комнату.  В данном случае пришлось прибегнуть к приёму освещения помещения через другое помещение, так как иначе никак не получалось спроектировать 3 отдельные комнаты при наличии всего двух окон. При данной планировке молодой семье можно уже планировать появление малыша, то есть квартира будет актуальна ближайшие лет 5-8, а это уже довольно удачное решение поставленной перед нами задачи. Цветовая гамма интерьера довольно яркая, но молодой паре очень хотелось привнести красок в своё окружение, поэтому решение им очень понравилось. Изюминка интерьера — интересные осветительные приборы и возможность разных сценариев освещения.

Трикімнатна квартира в ЖК «Comfort City»

Год проектирования: 2021
Площадь объекта: 61,0 м2
Размещение: м.Дніпро

У цій квартирі, не дивлячись на її невеликі розміри, вдалося розмістити простору студію, 2 спальні, вбиральню та ванну кімнату. У цьому випадку довелося вдатися до прийому освітлення приміщення через інше приміщення, оскільки інакше не виходило спроектувати 3 окремі кімнати за наявності всього двох вікон. При даному плануванні молодій сім’ї можна вже планувати появу малюка, тобто квартира буде актуальна найближчі 5-8 років, а це вже досить вдале рішення поставленого перед нами завдання. Колірна гама інтер’єру досить яскрава, але молодій парі дуже хотілося привнести фарб у своє оточення, тому рішення дуже сподобалося. Родзинка інтер’єру – цікаві освітлювальні прилади та можливість різних сценаріїв освітлення.

Остались вопросы? Получите консультацию!
Оставьте заявку и получите консультацию по стилю и цветовому решению от ведущего дизайнера студии
Введите свой номер телефона и мы Вам перезвоним