Трикімнатна квартира в ЖК «Рівер Парк» | Портфоліо «KAKADU-STUDIO»

Трикімнатна квартира в ЖК «Рівер Парк»

Рік проектування 2020
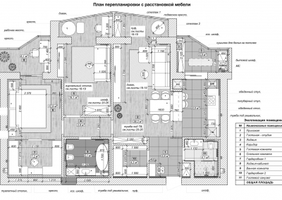
Площа об'єкту: 113,1 м2
Розташування: м.Дніпро

Простора квартира вийшла завдяки об’єднанню двох сусідніх квартир. Приємна хоч і темна кольорова гама квартири створює дуже душевну та домашню атмосферу затишку та спокою.
Поєднання красивих фактур каменю та дерева виглядає шикарно та дорого. Квартира має дуже зручне планування та чітке зонування на приватну та загальну зони. Простору студію ми бачимо вже зі входу, величезне дзеркало на всю стіну у вхідній зоні надає простору передпокою неймовірний об’єм.
Досить насичений тон стін компенсується великою кількістю сучасного освітлення. Це і трекові світильники, декоративні бра, і підвіси.

Залишились питання? Отримайте консультацію!
Залишіть заявку та отримайте консультацію щодо стилю та кольорового рішення від провідного дизайнера студії
Введіть свій номер телефону, і ми Вам передзвонимо