Перед вами дуже яскрава та незвичайна квартира. Це чудово, коли наші замовники готові до експериментів. Поєднання контрастних кольорів виглядає соковито та незвично. Фоном для насичених тонів виступають монохромні сіро-коричневі кольори.
Інтер’єр виглядає дуже життєрадісно та піднімає настрій.
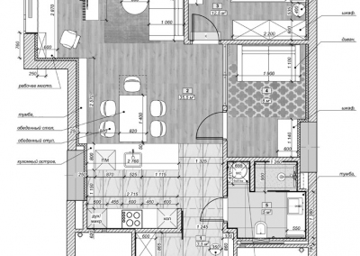
Окрім цього, квартира має дуже цікаве планування. На невеликій площі нам вдалося створити дві ізольовані спальні, простору студію з відокремленим робочим місцем та функціональну ванну кімнату.
Цікаве та різноманітне освітлення доповнює інтер’єр та вдало підкреслює його унікальність.
Трикімнатна квартира в ЖК «Панорама»
Рік проектування 2021
Площа об'єкту: 64,5 м2
Розташування: м.Дніпро