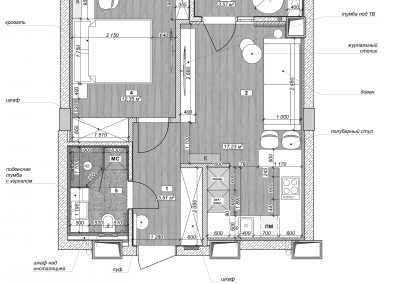
Квартира створювалася для молодої дівчини. Основний напрямок стилю було визначено як Лофт. Сірі тони інтер’єру розбавлені великою кількістю елементів з дерев’яною фактурою, тому інтер’єр в цілому не виглядає холодним. Освітлювальні прилади та елементи меблів відповідають кольоровій гамі приміщень. Монохром стін розбавлений якрики акцентами картин, меблів та текстилю. Завдяки грамотному плануванню у невеликій квартирі вдалося розмістити і студію, і ванну, і окрему спальню.
Однокімнатна квартира в ЖК «GENEVE»
Рік проектування 2021
Площа об'єкту: 42,2 м2
Розташування: м.Дніпро