Однокімнатна квартира в ЖК «Акварель» | Портфоліо «KAKADU-STUDIO»

Однокімнатна квартира в ЖК «Акварель»

Рік проектування 2020
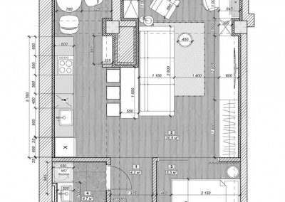
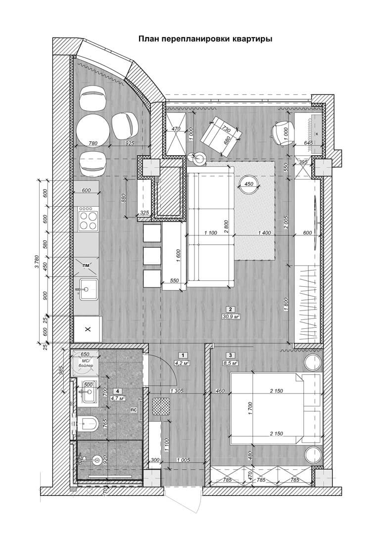
Площа об'єкту: 48,3 м2
Розташування: м. Дніпро

Даний формат квартири тепер дуже популярний, як задля здачі в оренду так і задля власного проживання однієї людини або подружжя без дітей. Іноді такі квартири називають полуторками, оскільки кухня-вітальня і зона спальні знаходяться в загальному просторі. Зона спальні може бути відокремлена різними засобами :  меблями, шторою, склом. Наш улюблений спосіб – розсувна перегородка. Вона може бути прозора або матова, але краще, звичайно, світлопроникна, аби спальна зона при закритих дверях не нагадувала  комору. У такому разі між студією і спальнею з боку спальні існує  ще щільна штора, аби була можливість її запнути і відчути самоту і інтимність обстановки для спокійного сну. Стиль цієї квартири можна охарактеризувати як мінімалізм з елементами LOFT. І знову, приємна оку колірна гама приміщень, яка не залишає байдужою більшість наших замовників. У цю квартиру хочеться повертатися і називати її своєю домівкою. Обстановка наповнена затишком і невимушеністю. Однак за видимою легкістю «ховається» достатня кількість містких зон зберігання, що не може не потішити  майбутніх мешканців квартири.

Залишились питання? Отримайте консультацію!
Залишіть заявку та отримайте консультацію щодо стилю та кольорового рішення від провідного дизайнера студії
Введіть свій номер телефону, і ми Вам передзвонимо