Двухкомнатная квартира в ЖК «Соколовский» | Портфолио «KAKADU-STUDIO»

Двухкомнатная квартира в ЖК «Соколовский»

Год проектирования: 2021
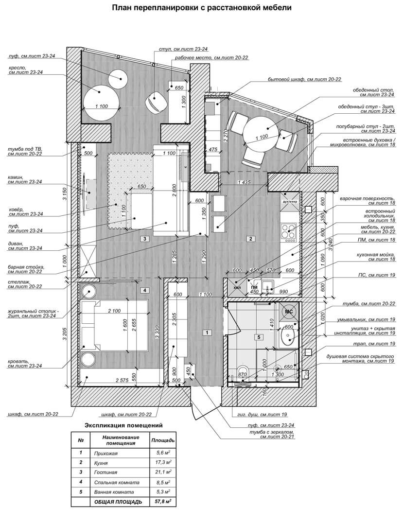
Площадь объекта: 57,8 м2
Размещение: г.Днепр

Квартира разрабатывалась для молодого человека, который пока собирался жить самостоятельно. Цветовая гамма интерьера и отделочные материалы — строгие и брутальные, выдержанные в одной цветовой гамме. Освещение использовано разнообразное, в основном в “лофт” стилистике. За счёт разнообразного освещения помещения выглядят просторно и не перегружено. Зона спальни отделена стеклянной перегородкой, что особенно актуально в современном интерьере.

Двокімнатна квартира в ЖК «Соколовський»

Год проектирования: 2021
Площадь объекта: 57,8 м2
Размещение: м.Дніпро

Квартира розроблялася для молодої людини, яка поки що збиралася жити самостійно. Колірна гама інтер’єру та оздоблювальні матеріали – суворі та брутальні, витримані в одній кольоровій гамі. Освітлення використано різноманітне, переважно у “лофт” стилістиці. За рахунок різноманітного освітлення приміщення виглядають просторо та не перевантажено. Зона спальні відокремлена скляною перегородкою, що особливо актуально у сучасному інтер’єрі.

Остались вопросы? Получите консультацию!
Оставьте заявку и получите консультацию по стилю и цветовому решению от ведущего дизайнера студии
Введите свой номер телефона и мы Вам перезвоним